设为首页 | 加入收藏
 
欢迎访问本站 今天是   
联轴器系列
减速机系列
十字包系列
万向节系列
 

  地址: 镇江市红光村陈家门18号
  联系人:

陈先生[13952889295]
蒋经理 13805286647

  传真: 0511-85393055
  网址: www.zjqhjx.com
  Email: 1079388228@qq.com
     

 
   
    产 品 说 明

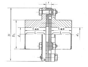
JMⅡ型膜片联轴器基本参数和主要尺寸 mm (JB/T 9147-1999)
型 号 公称转矩
Tn /N.m
瞬时最大转矩
Tmax
/N.m
最大转速
nmax
r/min
轴孔直径
d1,d2
轴孔长度 D D1 t 扭转刚度
×10
质量
Kg
转动惯量
kg.㎡
J1型Y型 L推荐
L
JMⅡ1 40 63 10700 14-28 27-62 35 80 39 8±0.2 0.37 0.9 0.0005
JMⅡ2 63 100 9300 20-38 38-82 40 92 53 0.45 1.4 0.0011
JMⅡ3 100 200 8400 25-45 44-112 45 102 63 0.56 2.1 0.002
JMⅡ4 250 400 6700 30-55 60-112 55 128 77 11±0.3 0.81 4.2 0.006
JMⅡ5 500 800 5900 35-65 60-142 65 145 91 1.2 6.4 0.012
JMⅡ6 800 1250 5100 40-75 84-142 75 168 105 14±0.3 1.42 9.6 0.024
JMⅡ7 1000 2000 4750 45-80 84-172 80 180 112 15±0.4 1.9 12.5 0.0365
JMⅡ8 1600 3150 4300 50-85 84-172 200 120 2.35 15.5 0.057
JMⅡ9 2500 4000 4200 55-85 84-172 205 20±0.4 2.7 16.5 0.065
JMⅡ10 3150 5000 4000 55-90 84-172 90 215 128 3.02 19.5 0.083
JMⅡ11 4000 6300 3650 60-95 107-172 100 235 132 23±0.5 3.46 25 0.131
JMⅡ12 5000 8000 3400 60-100 107-212 250 145 3.67 30 0.174
JMⅡ13 6300 10000 3200 63-110 107-212 110 270 155 5.2 36 0.239
JMⅡ14 8000 12500 2850 65-110 107-212 115 300 162 27±0.6 7.8 45 0.38
JMⅡ15 10000 16000 2700 70-125 107-212 125 320 176 8.43 55 0.5
JMⅡ16 12500 20000 2450 75-130 107-252 140 350 186 32±0.7 10.23 75 0.85
JMⅡ17 16000 25000 2300 80-140 132-252 145 370 203 10.97 85 1.1
JMⅡ18 20000 31500 2150 90-160 132-302 165 400 230 13.07 115 1.65
JMⅡ19 25000 40000 1950 100-170 167-302 175 440 245 38±0.9 14.26 150 2.69
JMⅡ20 31500 50000 1850 110-180 167-302 185 460 260 22.13 170 3.28
JMⅡ21 35500 56000 1800 120-200 167-282 200 480 280 23.7 200 4.28
JMⅡ22 40000 63000 1700 130-200 202-352 210 500 295 24.6 230 5.18
JMⅡ23 50000 80000 1600 140-220 202-352 220 540 310 44±1 29.71 275 7.7
JMⅡ24 63000 100000 1450 150-240 202-410 240 600 335 50±1.2 32.64 380 9.3
JMⅡ25 80000 125000 1400 160-250 242-352 255 620 350 50±1.2 37.69 410 15.3
JMⅡ26 90000 140000 1300 180-260 242-410 275 660 385 50.43 510 20.9
JMⅡ27 112000 180000 1200 190-280 282-470 295 720 410 60±1.4 71.51 620 32.4
JMⅡ28 140000 200000 1150 220-300 282-470 300 740 420 93.37 680 36
JMⅡ29 160000 224000 1100 240-320 330-470 320 770 450 114.53 780 43.9
JMⅡ30 180000 280000 1050 250-340 330-550 350 820 490 130.76 950 60.5


  • 上一个产品: WGP型带制动盘鼓形齿式联轴器

  • 下一个产品: MAL 摩擦安全联轴器
  • 返回上级产品
  • 点击数:12112  录入时间:2008-11-12 【打印此页】 【关闭  


    镇江启鸿机械有限公司  联轴器 膜片联轴器 万向联轴器
      Copyright (C) 2008-2009 Zjqhjx.Com Inc. All rights reserved.  
      建议使用1024*768浏览本站 本站长期域名:Www.Zjqhjx.Com  技术支持:江苏易润信息
    友情链接:镇江装潢公司

    苏公网安备 32111102000075号

    苏ICP备14043043号-1